Beschrijving
Wonen op de mooiste plek van Marknesse!
Ben je op zoek naar een vrijstaande woning waar je geniet van rust, privacy en een royale hoeveelheid leefruimte (178 m2 woonoppervlakte en 716 m3 inhoud)? Of zie je juist de kans om een solide huis volledig naar eigen smaak te moderniseren? Deze ruime woning aan de gracht in Marknesse combineert vrijheid, functionaliteit en mogelijkheden. Met maar liefst vijf slaapkamers, een grote garage en een royale tuin rondom biedt dit huis alle ruimte om comfortabel te wonen én te groeien.
De omgeving
Marknesse is het op één na grootste dorp van de Noordoostpolder en telt ruim 4.000 inwoners. Het is een sociaal vitaal dorp, wat zich volop ontwikkelt. Je vindt er alle voorzieningen die het dagelijkse leven prettig maken met onder andere: een grote supermarkt, bakker, kapsalons, horeca, basisscholen, kerken en volop sportmogelijkheden.
Marknesse kent een plezierige woonomgeving met veel groen, water en een ruimtelijke opzet.
Voor een uitgebreider aanbod ligt Emmeloord op slechts 8 kilometer afstand, met een breed scala aan middelbare scholen, winkels, theater, bioscoop en medische voorzieningen.
De omgeving biedt daarnaast volop recreatiemogelijkheden: wandel door het Waterloopbos, geniet bij Netl – de Wildste Tuin, of verken de uitgestrekte natuurgebieden Nationaal Park Weerribben-Wieden. Allemaal dichtbij, voor wie houdt van rust, natuur en buiten zijn. Ook zijn er pittoreske oude (haven-) stadjes dichtbij, zoals Vollenhove, Blokzijl, Giethoorn, Urk en Schokland.
Indeling van de woning
Via de hal met garderobe, meterkast en trapopgang kom je in de lichte woonkamer, waar grote raampartijen zorgen voor een prettige lichtinval en een ruimtelijk gevoel. Vanuit hier is er verbinding met de keuken, die functioneel is ingericht en indien gewenst, eenvoudig bij de woonkamer te betrekken is voor een moderne leefkeuken. Deze verdieping is rondom voorzien van zonwering.
De praktische bijkeuken met witgoedaansluitingen en bergruimte biedt directe toegang tot de achtertuin en de royale aangebouwde stenen garage met elektrische kanteldeur.
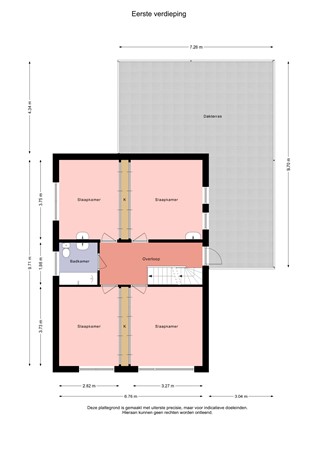
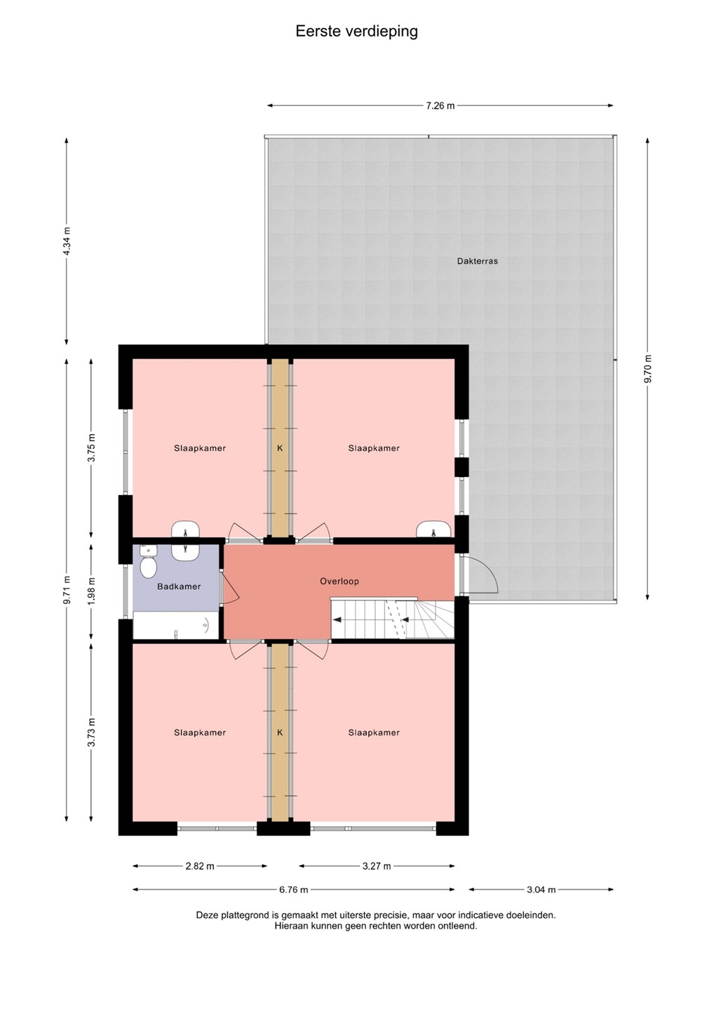
Op de eerste verdieping bevinden zich vier slaapkamers, allen voorzien van inbouwkasten. De twee kamers aan de achterzijde beschikken bovendien over een wastafel. Vanaf de overloop bereik je het royale platte dak waar eenvoudig een dakterras van circa 48 m² gerealiseerd kan worden. Ook bevindt zich hier de badkamer, voorzien van een ligbad, toilet en wastafel met planchet. Deze ruimte functioneert prima en biedt tegelijkertijd de mogelijkheid om deze geheel naar eigen smaak te moderniseren.
De tweede verdieping biedt nog meer ruimte met een vijfde slaapkamer aan de voorzijde en een zolderkamer met cv-opstelling (Nefit 2021), ideaal als hobbyruimte, werkplek of extra bergruimte.
De tuin
Rondom de woning ligt een ruime tuin die vrijheid en privacy biedt, het perceel is maar liefst 508 m2. De voortuin op het zuiden is heerlijk zonnig, terwijl de achtertuin op het noorden zorgt voor verkoeling en beschutting op warme dagen. De ligging aan de gracht geeft een extra gevoel van rust en openheid. In de zomer is de woning een fijne koele plek om te verblijven door de zonwering, de bomen aan de voorzijde van het huis en het prachtige uitzicht op de gracht en het dorp.
Indeling in het kort
Begane grond
- Hal met meterkast, garderobe, trapopgang en kelder
- Toilet
- Lichte woonkamer met grote raampartijen
- Keuken met gasfornuis, afzuigkap, koelkast (2024) en vaatwasser (2025)
- Bijkeuken met witgoedaansluitingen en bergkast
- Aangebouwde stenen garage (ca. 26 m²) met elektrische kanteldeur
Eerste verdieping
- Overloop
- Vier slaapkamers met inbouwkasten
- Plat dak waar relatief eenvoudig een dakterras van ca. 48 m² gerealiseerd kan worden
- Badkamer (1973) met ligbad, toilet en wastafel
Tweede verdieping
- Overloop
- Vijfde slaapkamer aan de voorzijde
- Zolderkamer met cv-opstelling, geschikt als hobbyruimte
Pluspunten van deze woning
- Vrijstaande woning met veel privacy
- 178 m² woonoppervlakte en 716 m³ inhoud
- Perceel van 508 m²
- Energielabel C
- Dak- en spouwmuurisolatie aanwezig
- Nefit cv-ketel uit 2021
- Vijf slaapkamers en extra hobbyruimte
- Royale garage en praktische bijkeuken
- Groot dakterras van ca. 48 m²
- Ligging aan de gracht
- Goede basis met mogelijkheid tot modernisering naar eigen smaak
- Ideaal voor thuiswerken of hobby’s
Zoek je rust, ruimte en vrijheid met de mogelijkheid om er helemaal jouw thuis van te maken? Plan dan een bezichtiging en ervaar zelf de ruimte, het licht en de mogelijkheden van deze woning.