Beschrijving
Spiksplinternieuwe en extra luxe uitgevoerde splitlevel-stadswoning met 2 terrassen (oost en west) en dubbele carport in het centrum van Emmeloord. Gasloos en met Energielabel A+++!
Introductie
Ben je op zoek naar een nieuwbouwwoning, maar zit je niet te wachten op lange bouwtijden, onzekerheid over de oplevering, een lange periode van dubbele lasten en de onderhandelingen met bouwers, projectontwikkelaars en leveranciers?
Deze splitlevelwoning is spiksplinternieuw en instapklaar! Alles is al geregeld! Geheel gasloos, met warmtepomp en energielabel A+++. Mét ideale centrumligging!
Emmeloord
Emmeloord fungeert als “Polderhoofdstad” van de Noordoostpolder en heeft daardoor een zeer uitgebreid voorzieningenaanbod. U vindt hier een uitgebreid winkelaanbod, bioscoop, theater, medische voorzieningen, diverse horeca-gelegenheden, sportfaciliteiten en alle denkbare middelbare scholen en kerken.
Voor de ontspanning loopt u zo het Emmelerbos in of gaat u iets verder weg naar het Werelderfgoed Schokland, natuurpark Netl, golfclub Emmeloord of recreatiegebied Wellerwaard.
Emmeloord is gunstig gelegen nabij de A6 en N50. Amsterdam, Utrecht, Leeuwarden en Groningen zijn binnen een uur met de auto bereikbaar. Zwolle, Kampen en Lelystad binnen een half uur.
In het centrum is een busstation met lijndiensten in alle richtingen.
Woning
Deze splitlevel-stadswoning ligt middenin het centrum van Emmeloord met supermarkten en de winkelstraat binnen handbereik en alle overige faciliteiten op loop-/fietsafstand.
Het huis is gebouwd in 2023 en is dus zo goed als nieuw.
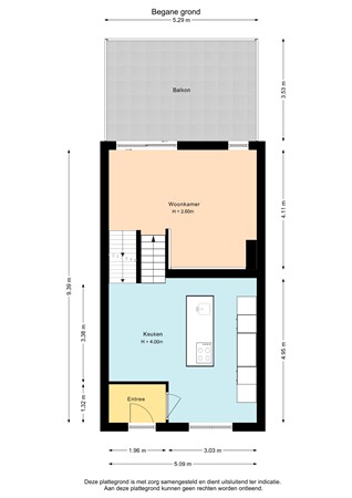
Via de entree in de prachtige stadsgevel kom je binnen in de keuken. Deze heeft een unieke indeling met een kook-/spoeleiland en door de splitlevel is de hoogte hier maar liefst 4 meter!
De woonkamer bevindt zich op de ander helft van de splitlevel met een luxe glazen balustrade als afscheiding. Vanuit de woonkamer bereik je ook het eerste terras, deze ligt op het oosten.
Op de eerste verdieping vind je de master-bedroom, 2 extra slaapkamers en een luxe uitgevoerde badkamer.
Op de tweede verdieping vind je vierde slaapkamer, lekker ruim en mét luxe inloopkast! De overloop heeft een keukenblokje en aansluiting voor de wasmachine en de droger. Vanaf de overloop bereik je het dakterras. Deze ligt op het westen.
Vanaf de begane grond kun je ook naar het souterrain. Hier bevinden zich het toilet en de ruime berging, die toegang biedt tot de dubbele carport.
Verwarming met een water-water warmtepomp (tevens koeling). Warmwatervoorziening met een doorstroomboiler en een extra close-in boiler in de keuken.
Het huis is gasloos, geheel voorzien van vloerverwarming en kunststof ramen en kozijnen en uiteraard volledig geïsoleerd. Er zijn 8 zonnepanelen en het Energielabel is A+++.
Buiten
Aan de achterzijde vind je de dubbele carport met 2 parkeerplaatsen op eigen terrein en een terras op het oosten.
Aan de voorzijde bevindt zich op de begane grond een klein stadstuintje en een dakterras op de tweede verdieping.
Het keukenraam aan de voorkant is uitgerust met screens op zonne-energie.
Met de beide terrassen vind je dus altijd een plekje in de zon of juist in de schaduw!
Indeling woning:
Souterrain
- Berging met meterkast
- Toilet
- Hal met trap naar begane grond
- Dubbele carport
Begane grond
- Entree
- Keuken met kook-spoeleiland voorzien van diverse inbouwapparatuur
- Woonkamer op de splitlevel schuifpui naar het terras
- Terras op het oosten
1e verdieping
- Overloop met trap naar tweede verdieping
- Master-bedroom met luxe badkamer ensuite met inloopdouche, 2e toilet, dubbele wastafels met spiegels met verlichting
- Slaapkamer 2
- Slaapkamer 3
2e verdieping
- Overloop met keukenblokje, wasmachine- en drogeropstelling en toegang tot het dakterras
- Slaapkamer 4 met inloopkast
- Dakterras op het westen
Kenmerken/pluspunten van deze woning
- Nieuwgebouwde (2023) splitlevel-stadswoning
- Zeer fraaie stadsgevel
- Schitterende centrumligging met uitzicht
- Instapklaar
- Gasloos, warmtepomp, vloerverwarming en Energielabel A+++
- Kunststof deuren, ramen en kozijnen
- Luxe keuken
- Splitlevel woonkamer
- 4 slaapkamers
- Luxe badkamer
- 2 terrassen (oost en west)
- Extra luxe uitgevoerde woning
- 2 parkeerplaatsen op eigen terrein
- Dicht bij centrum en overige faciliteiten
Ook nieuwsgierig geworden naar deze unieke, luxe en energiezuinige stadswoning? We laten je graag alles zien in een persoonlijke bezichtiging. Neem gerust contact op met ons kantoor en bel: 0527-620963.