Beschrijving
Welkom thuis in deze royale hoekwoning op een groot perceel in Emmeloord-West!
Deze woning valt direct op door het perceel van maar liefst 356 m², de vrijstaande stenen garage en de vier comfortabele slaapkamers. Een fijne gezinswoning met veel leefruimte binnen én buiten, een nette badkamer en een zonnige tuin op het zuiden. Een plek waar u direct prettig kunt wonen, met alle voorzieningen binnen handbereik.
Wonen in de polderhoofdstad van de Noordoostpolder
Emmeloord is het bruisende hart van de Noordoostpolder en biedt alle denkbare voorzieningen: een compleet winkelcentrum, supermarkten, horeca, theater, bioscoop, medische zorg en een breed aanbod aan scholen en sportverenigingen.
Voor recreatie liggen het Emmelerbos, werelderfgoed Schokland, natuurpark Netl, golfclub Emmeloord en recreatiegebied Wellerwaard binnen handbereik.
Dankzij de ligging nabij de A6 en N50 bent u snel onderweg naar steden als Amsterdam, Utrecht, Leeuwarden en Groningen. Almere, Lelystad, Zwolle en Kampen zijn eveneens goed bereikbaar. Het busstation in het centrum biedt uitstekende verbindingen in alle richtingen.
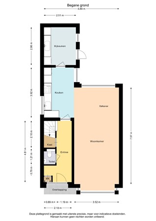
De woning
Bij binnenkomst in de hal vindt u het toilet, de meterkast, de trapkast, de trapopgang en de toegang tot de doorzonwoonkamer. De woonkamer heeft grote raampartijen aan beide zijden, waarvan aan de voorzijde een erkerraam, waardoor het een lichte en uitnodigende leefruimte is.
De keuken is compleet ingericht en voorzien van een koelkast, keramische kookplaat, oven, magnetron, vaatwasser en afzuigkap. Het natuurstenen aanrechtblad geeft een luxe uitstraling. Aansluitend bevindt zich de bijkeuken: een praktische extra ruimte met een keukenblok, wasmachine- en drogeraansluiting en een deur naar de achtertuin.
Op de eerste verdieping bevinden zich twee ruime slaapkamers met vaste kasten en een derde slaapkamer met toegang tot het platte dak, waar de mogelijkheid bestaat om een dakterras te realiseren. De moderne badkamer is uitgerust met een inloopdouche, toilet, badkamermeubel, vloerverwarming en een verwarmde spiegel.
De tweede verdieping biedt een verrassend ruime zolderkamer met dakkapel, waardoor er veel licht binnenvalt en u kunt genieten van een mooi uitzicht op de Poldertoren. Op de voorzolder bevinden zich de cv-ketel (Nefit, 2008, recent onderhouden), de mechanische ventilatie en extra bergruimte achter de knieschotten. Hiermee is deze verdieping ideaal als vierde slaapkamer, werkruimte of hobbykamer.
Buitenruimte
De huidige bewoners hebben een perceel grond bijgekocht waardoor een extra grote kavel is ontstaan.
De achtertuin ligt op het zuiden en biedt veel privacy, zon en volop ruimte voor de kinderen om te spelen.
De royale zijtuin op het oosten geeft extra ruimte voor een speelplek, moestuin of loungehoek. Aan de voorzijde ligt een nette voortuin.
Achter in de tuin staat een vrijstaande stenen (in spouw gemetselde) garage met roldeur en betonvloer — ideaal voor opslag, hobby’s of het stallen van fietsen, auto of motor. Parkeren van de auto kan op eigen oprit of op de openbare parkeerplekken langs de weg.
Je woont hier heerlijk rustig, maar toch dicht bij het centrum.
Indeling van de woning
Begane grond
• Hal met toilet, meterkast, trapkast en trapopgang
• Lichte doorzonwoonkamer
• Keuken met koelkast, keramische kookplaat, oven, magnetron, vaatwasser, afzuigkap en natuurstenen blad
• Bijkeuken met keukenblok, witgoedaansluitingen en toegang tot de tuin
Eerste verdieping
• Twee ruime slaapkamers met vaste kasten
• Derde slaapkamer met toegang tot plat dak (mogelijk dakterras)
• Moderne badkamer met inloopdouche, toilet, wastafelmeubel, vloerverwarming en verwarmde spiegel
Tweede verdieping
• Slaapkamer met dakkapel en inbouwkast
• Voorzolder met cv-ketel (Nefit, 2008, recent onderhouden), mechanische ventilatie en bergruimte
Kenmerken/Pluspunten van deze woning
• Extra groot perceel van 356 m²
• Hoekwoning
• Energielabel D
• Vier slaapkamers
• Vrijstaande stenen garage
• Eigen oprit
• Zonnige tuin op het zuiden én royale zijtuin
• Moderne badkamer met vloerverwarming
• Gedeeltelijk kunststof kozijnen
• Bijna volledig voorzien van dubbel glas
• Rustige, kindvriendelijke ligging in Emmeloord-West
• Nabij scholen, winkels, sportfaciliteiten en uitvalswegen
Kortom: deze netjes verzorgde woning met veel ruimte en mogelijkheden verdient het om gezien te worden. We laten u dit fijne huis graag persoonlijk ervaren tijdens een bezichtiging.