Beschrijving
Wonen met ruimte, licht en potentie in karakteristieke
2-onder-1-kap in gewilde buurt nabij het centrum
Bent u op zoek naar een woning waar u écht uw eigen thuis van kunt maken? Dan is deze 2-onder-1-kapwoning aan de Bourgondiëstraat 21 in Emmeloord absoluut het bekijken waard. Met een royale tuin, drie slaapkamers en een lichte doorzon woonkamer biedt deze woning een uitstekende basis voor wie ruimte zoekt én de handen uit de mouwen wil steken. Ideaal voor doorstromers met verbouwambitie, maar ook voor starters die nét dat stapje extra willen zetten om hun woonwensen waar te maken.
Wonen in de polderhoofdstad van de Noordoostpolder
Emmeloord is het bruisende hart van de Noordoostpolder en biedt alle denkbare voorzieningen: een compleet winkelcentrum, supermarkten, horeca, theater, bioscoop, medische zorg en een breed aanbod aan scholen en sportverenigingen. Voor recreatie liggen het Emmelerbos, werelderfgoed Schokland, natuurpark Netl, golfclub Emmeloord en recreatiegebied Wellerwaard binnen handbereik. Dankzij de ligging nabij de A6 en N50 bent u snel onderweg naar steden als Amsterdam, Utrecht, Leeuwarden en Groningen. Almere, Lelystad, Zwolle en Kampen zijn eveneens goed bereikbaar. Het busstation in het centrum biedt uitstekende verbindingen in alle richtingen.
De Bourgondiëstraat ligt in een rustige, groene woonwijk met voornamelijk eengezinswoningen. Voor de dagelijkse boodschappen ligt een buurtwinkelcentrum met onder andere een grote supermarkt, bakker en apotheek en diverse eetgelegenheden om de hoek. Daarnaast bevindt het hoofdwinkelcentrum ‘De Lange Nering’ zich op korte loopafstand – ideaal voor wie alle voorzieningen binnen handbereik wil hebben.
De woning
Deze woning uit 1962 biedt een solide basis. Zodra u binnenkomt, merkt u direct de ruimte en het licht die deze woning kenmerken. De doorzon woonkamer met grote raampartijen en een brede schuifpui aan de achterzijde zorgt voor een prettige lichtinval en een mooie verbinding met de tuin. De woonkamer is extra ruim doordat de keuken in de aanbouw is gerealiseerd. Hier ziet u meteen de potentie: een heerlijke leefruimte die met de juiste aanpassingen kan uitgroeien tot het hart van het huis.
Dit huis heeft een (onderheide) aanbouw met daarin de keuken en de bijkeuken. De keuken is voorzien van diverse inbouwapparatuur zoals een gasfornuis, oven en vrijstaande koelvriescombinatie.
Aansluitend bevindt zich de bijkeuken met CV-opstelling.
Op de verdieping bevinden zich drie slaapkamers, ideaal voor een gezin, thuiswerken of hobbyruimte. Ook bevindt zich hier de badkamer voorzien van toilet ligbad/douche en wastafelmeubel.
De tweede verdieping is bereikbaar via een vlizotrap en biedt praktische bergruimte.
Buitenruimte
De woning beschikt over een voortuin op het zuidoosten van circa 55 m², waar u in de ochtend heerlijk van de zon kunt genieten. De pergola geeft de tuin extra karakter en een fijne zitplek.
De diepe achtertuin van circa 120 m² is een echte meerwaarde: gelegen op het noordwesten geniet u hier van de middag- en avondzon. De tuin biedt volop ruimte om meerdere terrassen te creëren of een fijne plek voor kinderen om te spelen. De prachtige grote boom zorgt voor sfeer, karakter en natuurlijke beschutting. Daarnaast is de achtertuin bereikbaar via de carport naast de woning, maar ook via de steeg aan de achterzijde van de tuin, via welke de winkels ook eenvoudig binnendoor bereikbaar zijn.
Er is voldoende ruimte voor (verdere) uitbreiding van de woning.
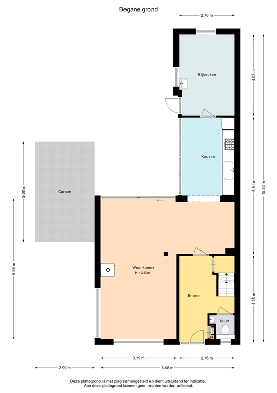
Indeling
Begane grond:
- Hal met meterkast en kelderkast
- Toilet
- Doorzon woonkamer met grote raampartijen en schuifpui over de volle breedte
- Keuken met diverse inbouwapparatuur
- Bijkeuken met CV-opstelling (2018) en wasbak
- Carport
Eerste verdieping:
- Overloop met vlizotrap naar bergzolder
- Slaapkamer aan de voorzijde
- Twee slaapkamers aan de achterzijde, waarvan één met toegang tot het platte dak van de bijkeuken
- Badkamer
Tweede verdieping:
- Bergzolder, bereikbaar via vlizotrap (geen stahoogte)
Pluspunten / kenmerken
- 2-onder-1-kapwoning met veel ruimte en privacy
- Royale achtertuin van ca. 120 m² op het noordwesten
- Lichte doorzon woonkamer met grote schuifpui
- Drie volwaardige slaapkamers
- Praktische bijkeuken en kelder
- Carport en extra parkeergelegenheid in de straat
- Volop mogelijkheden om te moderniseren, uitbreiden en verduurzamen
- Gelegen in rustige, groene woonwijk nabij alle voorzieningen
Bent u op zoek naar een woning waar u uw eigen stempel op kunt drukken en die u kunt laten meegroeien met uw woonwensen? Dan is Bourgondiëstraat 21 absoluut een bezichtiging waard. Maak snel een afspraak en ontdek zelf de ruimte, het licht en de mogelijkheden die deze woning te bieden heeft.
Plattegronden
Bourgondiëstraat 21 Emmeloord 1.jpg
Bourgondiëstraat 21 Emmeloord 1 3D.jpg
Bourgondiëstraat 21 Emmeloord 2.jpg
Bourgondiëstraat 21 Emmeloord 2 3D.jpg
Bourgondiëstraat 21 Emmeloord 3.jpg
Bourgondiëstraat 21 Emmeloord 3 3D.jpg